Skip to Content
会议
会议室详情
离骚厅 I & II
会议室详情
会议服务
庆典
索取会议资讯
您正在查看:
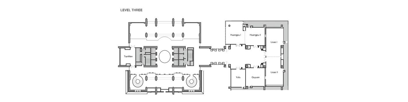
会议室概况
平面图
会议室概况
平面图
会议室概况
规模
2174 平方英尺 | 202 平方米
会议室规格
76 x 26 英尺 | 23 x 8 仪表
水晶灯高度
2 仪表 | 7 英尺
座位容量
10人宴会桌
144
招待会
200
会议
68
课桌式
120
U型
60
剧院式
180